BOTANICAL GARDEN OF THE UNIVERSITY OF COIMBRA
public contest [2nd prize]
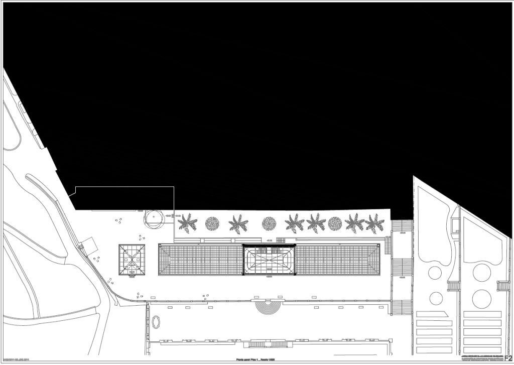
The project was carried out as part of a public tender promoted by the University of Coimbra, for the rehabilitation of the Botanical Garden's tropical greenhouses and the proposal for a space to disseminate science and support the Botanical Garden's activities.
In general terms, the project considers
- the integral preservation of the Estufa Grande, maintaining its fundamental expression, consolidating its structural elements and physically rehabilitating its infrastructures;
 - the enhancement of the architectural condition of the Estufa Vitória, by elevating its structure, giving it a more dignified scale, both in relation to visitors and to the Estufa Grande;
 - the construction of the “In Situ” Science Building under the higher platform, thus providing an outdoor space of a size more suited to the intended uses; the presence of this new construction in the enclosure will correspond to a single elevation that is almost identical to the supporting wall of the upper platform.
 
The proposed location implies the demolition of the existing outbuildings and the felling of three trees, given their phytosanitary state and the importance of the species.
- the treatment of the surrounding outdoor spaces, with solutions that seek to enhance their more effective use;
 
From a spatial point of view, the program was distributed as follows:
- maintenance of the uses and functions of the Greenhouses, without altering the program, with the sole aim of qualifying them in terms of energy efficiency, constructive, spatial and plastic quality;
 - distribution of the program for the “In Situ” Science space, public toilets and gardeners' work area concentrated in a single building, with a view to rationalizing the construction, organizing the three functions autonomously;
 
- Architecture: Paulo Seco
 - Collaboration: Filipe Lourenço
 - Location: Coimbra
 - Project: 2011
 - Construction:
 - Image Copyright: Impare Arquitectura
 


















